Aktuální akce v regionu
čtěte blog
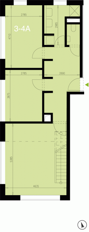
4+kk mezonet / 95.53 m2
Rezervovatprodán
Cena zahrnuje následující příslušenství:
parkovací stání, sklep
Vyberte si ze dvou variant možného financování Vašeho vysněného bytu. Kupní cenu můžete uhradit postupně, podle toho jak pro Vás budeme dokončovat jednotlivé fáze stavby nebo uhradíte zálohu a většinu kupní ceny při vkladu Vašich práv do katastru. Záleží na Vás. Více o informací >
| 1.01 | PŘEDSÍŇ | 12,38 |
| 1.02 | OBÝVACÍ POKOJ + KK | 25,38 |
| 1.03 | SCHODIŠTĚ | 2,88 |
| 1.04 | POKOJ | 11,73 |
| 1.05 | LOŽNICE | 14,00 |
| 1.06 | KOUPELNA | 5,12 |
| 1.07 | WC | 1,42 |
| CELKOVÁ PLOCHA | 72,91 |
2,917
| 1.08 | PRACOVNA | 21,71 |
| CELKOVÁ PLOCHA | 21,71 |
video
Aktuální stav výstavby
Aktuální stav výstavby
NEBYTOVÉ PROSTORY Součástí bytového komplexu nabízíme k pronájmu i nebytové prostory. Informace v kanceláři
NEBYTOVÉ PROSTORY Součástí bytového komplexu nabízíme k pronájmu i nebytové prostory. Informace v kanceláři
Aktuální stav prodeje Prodáno již přes 90 % bytů
Aktuální stav prodeje Prodáno již přes 90 % bytů
Virtuální prohlídka bytu Navštivte náš FACEBOOK a podívejte se na virtuální zpracování bytu v domě OTÝLIE
Virtuální prohlídka bytu Navštivte náš FACEBOOK a podívejte se na virtuální zpracování bytu v domě OTÝLIE
ZELENÉ ZAHRADY Střešní terasa může poskytnout příjemné posezení
ZELENÉ ZAHRADY Střešní terasa může poskytnout příjemné posezení